SUS 潔淨櫃(1)
本 SUS 潔淨櫃專為高潔淨度實驗室與製程作業區所設計,主要功能為提供穩定、可控制之潔淨氣流環境,以保護作業物件免受外部微粒與污染影響。整體採用高品質不鏽鋼(SUS)材質製作,兼具結構強度、耐用性與易清潔特性,並整合 FFU 風機過濾網組 與 背板可調式抽氣系統,可有效維持櫃內潔淨度與氣流穩定性。
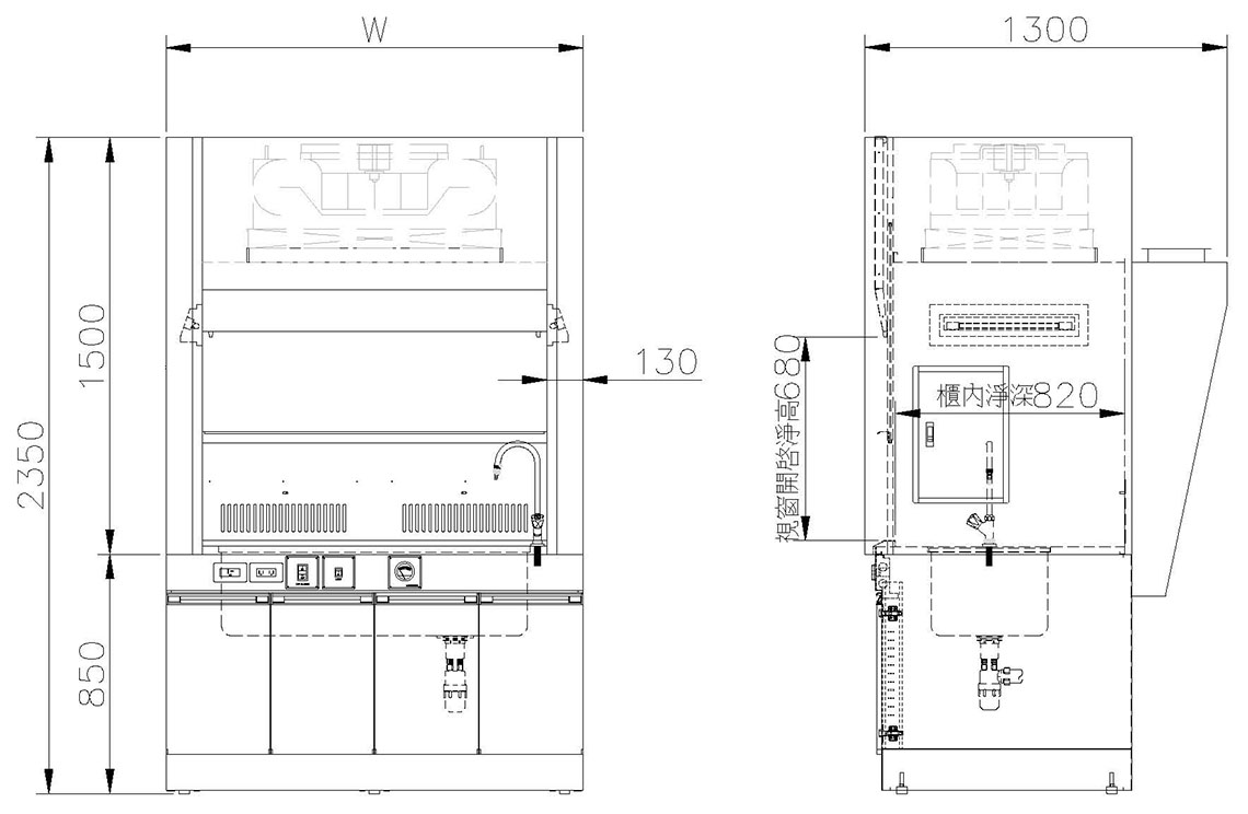
產品特性說明
- SUS 不鏽鋼整體結構
櫃體與內部結構採用不鏽鋼(SUS)材質製作,表面平整、耐磨耗、易清潔,適合高潔淨度與長時間運作之環境。 - FFU 風機過濾網組
上方配置 FFU(Fan Filter Unit)風機過濾系統,提供穩定且均勻的潔淨氣流,有效降低懸浮微粒濃度,維持作業區潔淨等級。 - 背板可調式抽氣設計
櫃體後背設有可調式抽氣結構,可依實際作業需求調整抽氣量與氣流分佈,協助導引氣流流向,避免污染物滯留於作業區。 - 風車馬達開關
前方面板配置風車馬達啟停開關,方便使用者依作業狀態控制抽氣系統運轉,確保櫃內氣流穩定。 - 壓差計監測系統
配置壓差計,即時顯示櫃內與外部環境之壓差狀態,協助使用者確認 FFU 與抽氣系統運作是否正常,提升使用安全與管理效率。 - 日光燈照明與獨立開關
作業區內建日光燈照明,並設有獨立開關控制,提供充足且均勻光源,提升操作視野與作業精準度。 - 潔淨作業空間設計
內部空間結構簡潔,減少死角與污染物堆積,便於日常清潔與維護。 - 下方 SUS 收納櫃體
底部配置不鏽鋼收納櫃體,可用於存放工具、耗材或相關設備,提升空間使用效率。
應用範圍
- 高潔淨度實驗室作業區
- 半導體、光電、電子材料製程
- 生技、製藥與醫檢實驗室
- 精密組裝、檢測與分析作業
- 需潔淨氣流保護但不涉及清洗之工作環境
| 設備尺寸(mm) | 1500wx1300dx2350h | 1800wx1300dx2350h | 2200wx1000dx2300h |
| 作業尺寸(mm) | 1240w*820d | 1540w*820d | 1940w*820d |
| 出風口 | 4尺 FFU風機過濾網組+8" | 5尺 FFU風機過濾網組+10" | 6尺 FFU風機過濾網組+8" *2 |
| 設置高度(mm) | 2600h | ||
| 開口風速(m/s) | 0.5 | ||
| 風量需求(cmm) | 14 | 17 | 21 |
*尺寸皆可依需求設計製作
| 外殼 | 厚1.0mm-SUS#316砂面 |
| 內罩 | 厚1.0mm-SUS#316砂面 |
| 台面板 | 厚1.5mm-SUS#316砂面 |
| 視窗 | 厚6mm強化玻璃、SUS成型把手 |
| 照明 | LED日光燈具組及5mm強化玻璃、燈罩,與櫃內櫃外隔離 |
| 五金配件 | 緩衝式鉸鏈、硬質PVC 押出條型把手、4分螺桿耐重調整腳 |
| 龍頭 | 依需求配置單口鵝頸龍頭 |
| 水槽 | 厚1.0mm-SUS#316砂面水槽1100w*420d*300h、洞洞板 |
| 電器插座 | AC 110V-15A 插座1組、AC 220V-20A插座1組 |
| 控制面板 | 設有風車馬達開關、日光燈開關、壓差計 |
*本商品不含動力排氣裝置












