PP 清洗櫃(4)
本 PP 清洗櫃專為實驗室器皿清洗與化學前處理作業所設計,整體採用高耐化學性的聚丙烯(PP)材質製作,具備優異的耐酸鹼與耐腐蝕性能。設備整合高耐化學清洗給水與氣源配置、背板可調式抽氣系統,並搭配三色燈設備狀態指示,可有效控制清洗作業時產生的化學氣體,並即時掌握設備運轉狀態,全面提升操作安全性與管理效率。
產品特性說明
- 全 PP 耐化學結構
櫃體、內襯與清洗作業區全面採用聚丙烯(PP)材質,適用於多數酸、鹼及化學溶劑環境,長期使用不易老化,適合高頻率清洗作業。 - PVDF 單口純水龍頭(附手動控制閥)
配置高耐化學性 PVDF(聚偏二氟乙烯)單口純水龍頭,並附手動控制閥,可精準控制出水量,適用於純水或超純水清洗作業,有效避免金屬離子污染。 - PP 氣槍配置
搭配 PP 材質氣槍,適合於清洗後快速吹乾器皿或去除殘液,耐化學性佳,提升清洗效率與操作彈性。 - 背板可調式抽氣設計
清洗區後方設有可調式抽氣背板,可依實際作業需求調整抽氣量與氣流分佈,協助排除清洗過程中產生的揮發性化學氣體與異味,降低污染物滯留與外逸風險。 - 三色燈設備狀態指示系統
櫃體上方配置三色燈,可即時顯示設備運轉、待機或異常狀態,使操作人員於遠距即可掌握設備狀況,提升實驗室安全管理與現場作業效率。 - 整合式清洗作業空間
清洗區結構整合成型,配置完善排水設計,清潔與日常維護更為便利。 - 下方 PP 收納櫃體
底部設有耐化學 PP 櫃體,可收納清洗用品、管線或實驗耗材,提升整體空間利用率。 - 行動式櫃體設計
櫃體下方可配置耐重腳輪並附煞車功能,方便設備移動與定位,符合實驗室彈性配置需求。
應用範圍
- 化學實驗室器皿清洗與前處理作業
- 生技、製藥與醫檢實驗室
- 半導體與電子材料實驗室
- 大專院校與研究機構
- 需可調抽氣與設備狀態即時監看的清洗作業環境
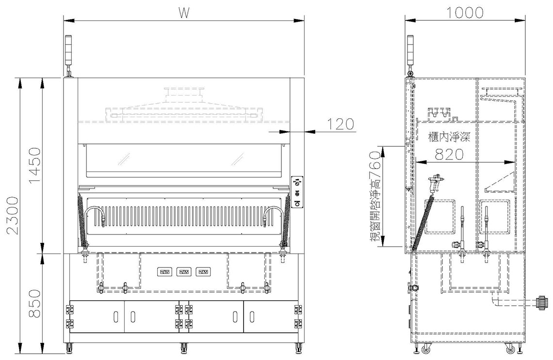
| 設備尺寸(mm) | 1500wx1000dx2300h | 1800wx1000dx2300h | 2000wx1000dx2300h |
| 作業尺寸(mm) | 1260w*820d | 1560w*820d | 1760w*820d |
| 出風口 | 10" | 10" | 10" |
| 設置高度(mm) | 2600h | ||
| 開口風速(m/s) | 0.5 | ||
| 風量需求(cmm) | 14 | 17 | 19 |
*尺寸皆可依需求設計製作
| 外殼 | 厚10mm耐酸鹼FMPP板 |
| 內罩 | 厚10mm耐酸鹼FMPP板 |
| 台面板 | 厚10mm耐酸鹼FMPP板 |
| 視窗 | 厚12mm耐酸鹼FMPP板、附門栓、透明視窗FMPVC板厚5mm |
| 照明 | LED日光燈具組及耐酸鹼FMPVC板8mm、燈罩,與櫃內櫃外隔離 |
| 五金配件 | ABS鉸鍊、內凹把手、2-1/2"平盤活動PP輪附調整腳、三色燈 |
| 龍頭 | 依需求配置PVDF單口純水龍頭 ( 附手動控制閥 )、PP水槍、PP氣槍附掛勾、PFA伸縮管件 |
| 水槽 | 耐酸鹼FMPP板10mm焊接成型 活動水槽400w*300d*300h、洞洞板 |
| 電器插座 | AC 110V-15A 插座3組 ( 防漏電保護 ) |
| 控制面板 | 設有日光燈開關、蜂鳴器開關、警示器開關 |
*本商品不含動力排氣裝置












