PP 清洗櫃(2)
本 PP 清洗櫃專為實驗室高潔淨度清洗與化學品沖洗作業所設計,整體採用高耐化學性的聚丙烯(PP)材質製作,具備優異的耐酸鹼與耐腐蝕性能。設備整合二道連動式視窗結構、高耐化學清洗與氣槍配置,並搭配完整風量控制與安全監測系統,即使於室內層高受限的環境下,仍可維持良好的操作視野、氣流控制與使用安全性。
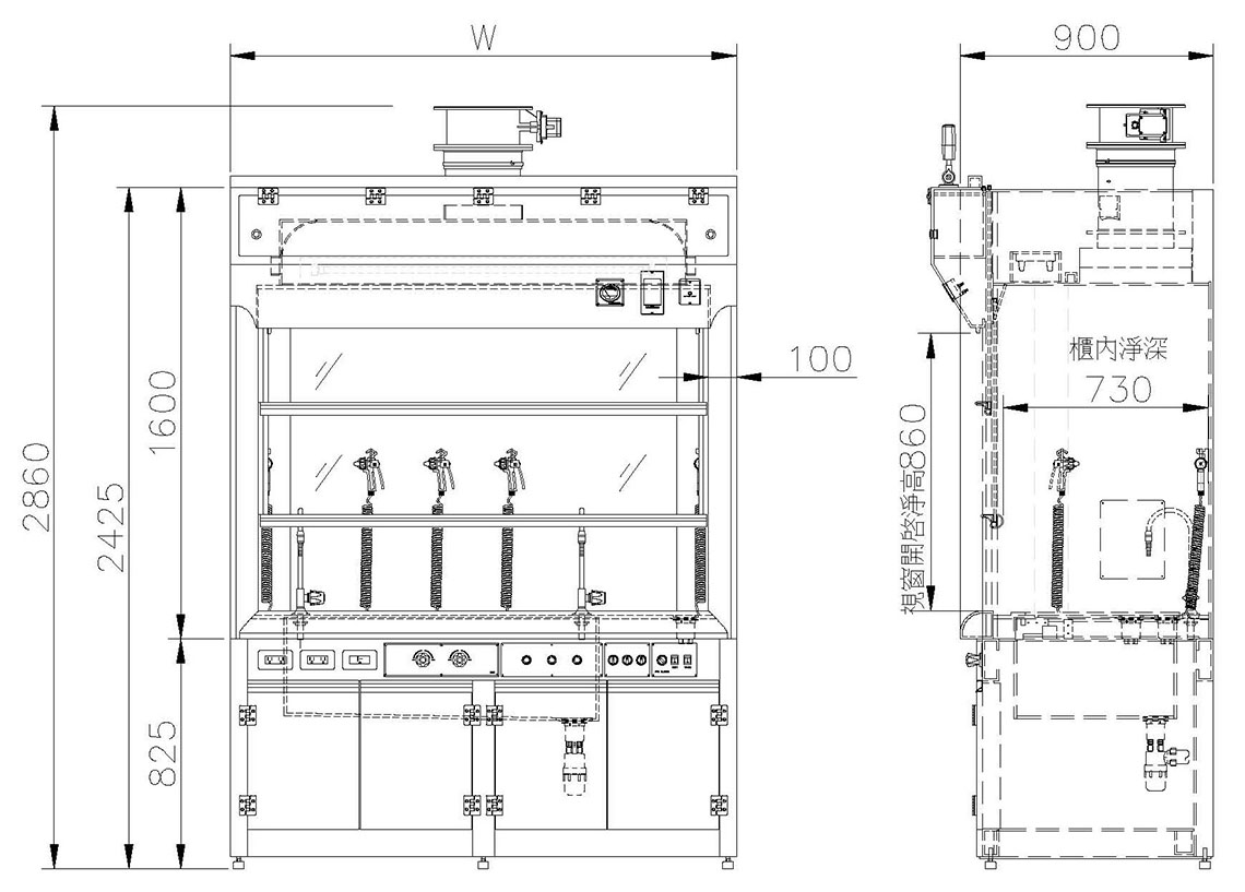
產品特性說明
- 全 PP 耐化學結構
櫃體、內襯與清洗作業區全面採用聚丙烯(PP)材質,適用於強酸、強鹼與多數化學溶劑環境,長期使用不易老化。 - 二道連動式視窗設計
採用上下二道連動式視窗結構,可在室內高度較低的情況下,仍保有較大的實際視窗開口高度,兼顧操作便利性、視野清晰度與安全防護。 - PVDF 單口純水龍頭(手動開關)
配置高耐化學性 PVDF 單口純水龍頭,搭配手動控制開關,適用於純水或超純水清洗作業,有效避免金屬離子污染。 - PFA 氣槍(手動開關)
配備高耐化學性 PFA 氣槍與手動開關,適合清洗後快速吹乾器皿或去除殘液,滿足高潔淨製程需求。 - 完整風量控制與監測系統
設備整合多項風控與安全監測元件,包括:- 風門選擇開關
- 壓差計
- 風速感知器
- 風速顯示與警報設定面板
可即時監控櫃內氣流狀態,確保操作時維持穩定負壓與安全風速。
- 溶劑調壓開關配置
內建溶劑調壓開關,可依實際使用需求調整供應壓力,提升使用安全性與操作精準度。 - 一體式清洗作業空間
清洗區結構整合成型,接縫少、不易殘留污染物,清潔與日常維護更為便利。 - 下方 PP 收納櫃體
底部設有耐化學 PP 櫃體,可用於存放清洗耗材、管線或相關配件,提升實驗室空間使用效率。
應用範圍
- 化學實驗室清洗與前處理作業
- 半導體、電子材料與先進製程實驗室
- 生技、製藥與醫檢實驗室
- 空間高度受限但需大視窗操作之實驗室
- 需精準風量監控與高潔淨清洗之作業環境
| 設備尺寸(mm) | 1500wx900dx2425h | 1800wx900dx2425h | 2400wx900dx2425h |
| 作業尺寸(mm) | 1300w*730d | 1600w*730d | 2200w*730d |
| 出風口 | 10" 文式管+蝶閥 | 10" 文式管+蝶閥 | 8" *2併10" *1-文式管+蝶閥 |
| 設置高度(mm) | 2600h | ||
| 開口風速(m/s) | 12 | ||
| 風量需求(cmm) | 15 | 19 | 28 |
*尺寸皆可依需求設計製作
| 外殼 | 瓷白/乳白/象牙白 厚度8mm耐酸鹼PP板 |
| 內罩 | 瓷白/乳白/象牙白 厚度8mm耐酸鹼PP板 |
| 台面板 | 瓷白/乳白/象牙白 厚度12mm耐酸鹼PP板 |
| 照明 | LED日光燈具組及5光強化玻璃、燈罩,與櫃內櫃外隔離 |
| 底座 | 瓷白/乳白/象牙白 厚度8mm耐酸鹼PP板,ABS鉸鍊、硬質PVC押出條型把手 |
| 龍頭 | 依需求配置PVDF單口純水龍頭+手動開關、PFA氣槍+手動開關 |
| 水槽 | 耐酸鹼FMPVC板10mm焊接成型 1100w*550d*350h大水槽、洞洞板 |
| 電器插座 | AC 110V-15A 插座2組、AC 220V-20A插座1組 |
| 控制面板 | 設有組風門選擇開關、電動開關、插座開關、壓差計、風速感知器、風速顯示與警報設定面板、溶劑調壓開關 |
*本商品不含動力排氣裝置












