SUS 清洗櫃(2)
本 SUS 清洗櫃專為實驗室器皿清洗、化學前處理及需搭配抽氣系統之清洗作業所設計,整體採用高品質不鏽鋼(SUS)材質製作,兼具優異的結構強度、耐用性與易清潔特性。設備整合與氣源配置、抽氣運轉與監測元件,可穩定控制櫃內氣流狀態,確保清洗作業安全與效率。
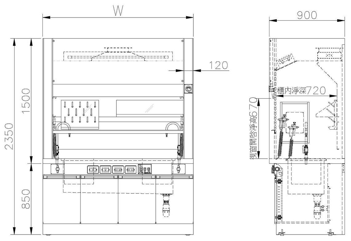
產品特性說明
- SUS 不鏽鋼整體結構
櫃體、內襯與清洗作業區皆採用不鏽鋼(SUS)材質製作,結構穩固、耐磨耗、耐清洗,表面易於清潔,適合高使用頻率之實驗室環境。 - 單口純水鵝頸龍頭(附手動控制閥)
配置單口純水鵝頸式龍頭,搭配手動控制閥,可精準調整出水量,適用於純水或超純水清洗作業,提升操作便利性並降低污染風險。 - PP 氣槍配置
搭配 PP 材質氣槍,適合清洗後吹乾器皿或去除殘液,具良好耐化學性,提升清洗作業效率與彈性。 - 風車馬達開關
前方面板配置風車馬達啟停開關,可依作業需求控制抽氣系統運轉,確保櫃內維持適當負壓與氣流狀態。 - 壓差計監測設計
設置壓差計以即時監測櫃內與外部環境之壓差變化,協助使用者判斷抽氣系統運作是否正常,提升操作安全性。 - 日光燈照明與獨立開關
清洗區內建日光燈照明,並設有獨立開關控制,確保作業區光線充足,提升視野清晰度與操作精準度。 - 預留功能開關
面板預留擴充開關位置,方便日後整合其他設備或功能模組,提升設備使用彈性與系統整合性。 - 整合式清洗作業空間
清洗區採一體化設計並搭配完善排水結構,可降低液體殘留,清潔與日常維護更加便利。 - 下方收納櫃體設計
底部配置不鏽鋼收納櫃體,可用於存放清洗用品、耗材或管線,提升實驗室空間利用效率。
應用範圍
- 化學實驗室器皿清洗與前處理作業
- 生技、製藥與醫檢實驗室
- 半導體與電子材料實驗室
- 大專院校與研究機構
- 需抽氣控制、壓差監測與高耐用清洗設備之作業環境
| 設備尺寸(mm) | 1500wx900dx2350h | 1800wx900dx2350h | 2000wx900dx2350h |
| 作業尺寸(mm) | 1260w*720d | 1560w*720d | 1760w*720d |
| 出風口 | 10" | 10" | 10" |
| 設置高度(mm) | 2600h | ||
| 開口風速(m/s) | 0.5 | ||
| 風量需求(cmm) | 14 | 17 | 19 |
*尺寸皆可依需求設計製作
| 外殼 | 厚1.0mm-SUS#304砂面 |
| 內罩 | 厚1.0mm-SUS#304砂面 |
| 台面板 | 厚1.0mm-SUS#304砂面 |
| 視窗 | 厚6mm透明PVC視窗、SUS成型把手 |
| 照明 | LED日光燈具組及5mm強化玻璃、燈罩,與櫃內櫃外隔離 |
| 五金配件 | 緩衝式鉸鏈、硬質PVC 押出條型把手、4分螺桿耐重調整腳 |
| 龍頭 | 依需求配置單口純水鵝頸龍頭 ( 附手動控制閥 )、PP水槍、PP氣槍附掛勾 |
| 水槽 | 厚1.0mm-SUS#304砂面水槽350w*350d*300h、洞洞板、滴水架 |
| 電器插座 | AC 110V-15A 插座2組、AC 220V-20A插座2組、附防塵蓋 |
| 控制面板 | 設有風車馬達開關、日光燈開關、預留開關、壓差計 |
*本商品不含動力排氣裝置












