靠邊型實驗水槽桌/門型壁櫃/鋼製藥架-鋼吊鋼- 3640x750x825/2400 mm
靠邊型實驗桌(1)
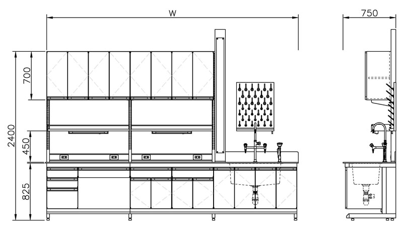
產品特性說明
- 鋼構鋼櫃混合式結構:實驗桌採用堅固鋼構主架與鋼製懸吊櫃,具備良好穩定性與承重能力,適用各類實驗環境。
- 上方配置鋼製壁櫃:壁櫃提供充足收納空間,門板為對開型設計,便於存取,整體為防鏽耐蝕烤漆鋼板製成。
- 中段搭配雙層藥品層架:藥架可調整高度,利於分類擺放試劑或器材,提升儲物彈性與操作便利性。
- 右側配置實驗用水槽與滴水架:配備耐酸鹼PP水槽、三口龍頭與滴水架,便於玻璃器皿清洗與瀝乾。
- 懸吊式下櫃設計具模組化優勢:各櫃體為標準模組,未來可依實驗需求彈性更換為抽屜櫃、門櫃、座位空間或開放區域。
- 實驗桌面材質高耐化學性:搭載耐酸鹼與耐熱性優異的實驗檯面材質(如環氧樹脂板、化學板等),方便清潔維護。
- 整合電源配置:背板設有插座模組,便於儀器用電,提升實驗效率。
應用範圍
- 適用於各式化學、生物、製藥與分析類實驗室。
- 適合進行樣品前處理、器皿清洗、試劑存放與一般實驗操作。
- 特別適合需搭配上下收納設備、水源操作與多樣化儀器配置的實驗空間。
- 廣泛應用於學研單位、產業實驗室與教學示範空間。
| 桌寬(mm) | 2400 | 3000 | 3600 | 4350 |
| 桌深(mm) | 750/900 | |||
| 桌高(mm) | 825/885(±3%) | |||
| 總高(mm) | 2200/2400 | |||
*尺寸皆可依需求設計製作
| 下櫃款式 | 單抽座位 | 單抽單門(左開or右開) | 單抽雙門 | 單門(左開or右開) | 雙門 | 水槽櫃(四門or雙門) | 三抽活動櫃 |
| 上櫃款式 | 門板壁櫃 | 門板玻璃壁櫃 | 玻璃壁櫃 | 玻璃滑門壁櫃 | 開放櫃 | 靠邊桌上型藥架 | 中央桌上型藥架 |
|
|
|
|
|
|
| |
| 水槽款式 | 黑色PP水槽 735*390*315 mm | 黑色PP水槽 500*400*300 mm | 黑色PP水槽 395*290*260 mm | 黑色PP小水槽 220*120*120 mm | 黑色PP小水槽 148*70*115 mm | SUS水槽訂製尺寸 | 白色PP水槽訂製尺寸 |
|
|
|
|
|
|
| |
| 龍頭款式 | 三口鵝頸龍頭 | 三口平行龍頭 | 雙口平行龍頭 | 單口鵝頸龍頭 | UPVC鵝頸龍頭 | PP鵝頸龍頭 | PVDF鵝頸龍頭 |
|
|
|
|
|
|
|























