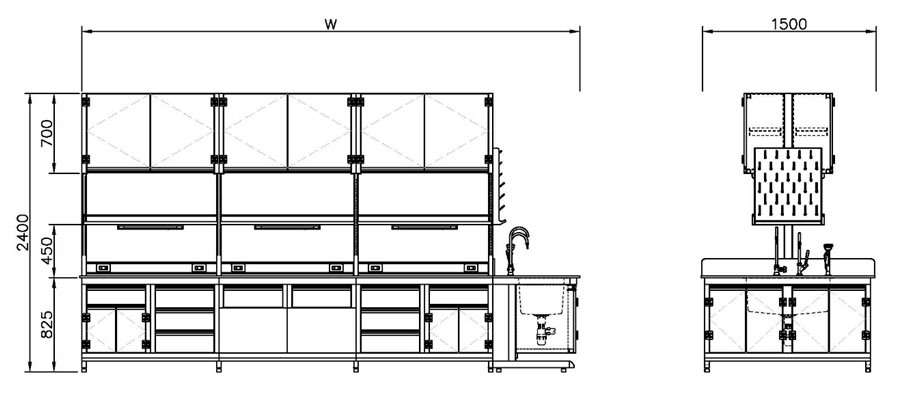
此實驗桌結構設計兼具模組化與耐腐蝕特性,特別適合各類化學與生物實驗室。上方配置PP材質壁櫃與藥品層架,具備優異的化學抗性,下方則採用PP懸吊式儲物櫃設計,提供靈活的存儲空間與良好的人體工學操作環境。
中央型實驗桌(5) 鋼吊PP
此實驗桌結構設計兼具模組化與耐腐蝕特性,特別適合各類化學與生物實驗室。上方配置PP材質壁櫃與藥品層架,具備優異的化學抗性,下方則採用PP懸吊式儲物櫃設計,提供靈活的存儲空間與良好的人體工學操作環境。
產品特性說明
- 耐化學腐蝕桌面
採用實心抗蝕化學板,具備卓越的耐酸鹼能力,能承受王水、硫酸、氫氟酸等高腐蝕性化學物質。 - PP材質壁櫃
上方配置全PP壁櫃,門片採用耐酸鹼材質搭配化學藥品層架,有效避免揮發性物質對櫃體損害,同時提升藥品存取便利性。 - 藥品收納層架
中段採用模組化藥品層架系統,提供足夠儲物空間,可調整高度以適應不同瓶罐尺寸,並具防滑條設計提升安全性。 - PP懸吊式下櫃系統
實驗桌下方設有多組PP懸吊櫃,具優異的耐腐蝕特性。模組化設計可依需求自由更換為抽屜式、門櫃式、開放留空或座位空間,提供極高的彈性與未來擴充性。 - 整體鋼構支撐架
實驗桌支撐架採用烤漆鋼構設計,結構穩固,負重強,確保整體工作平台的穩定性與耐久性。 - 流理槽與滴水架配置
右側整合PP材質水槽、三孔水龍頭與滴水架,有效支援清洗與滴乾工作,便於水路操作與排水管理。
應用範圍
- 適用於化學、生物、藥學、環工、食品等實驗室領域
- 可執行含強酸、強鹼、有機溶劑等腐蝕性液體之操作
- 支援多樣藥品儲存與分裝作業
- 適合需頻繁清洗器皿的操作場景
- 提供長時間站立操作的舒適作業環境
| 桌寬(mm) | 2400 | 3000 | 3600 | 4350 |
| 桌深(mm) | 1200/1500 | |||
| 桌高(mm) | 825/885(±3%) | |||
| 總高(mm) | 2200/2400 | |||
*尺寸皆可依需求設計製作
| 鋼骨架構 | 60*40*2.3mm 鋼管焊接成型,Epoxy 靜電粉體烤漆 |
| 鋼立柱 | 70*40*1.6mm 鍍鋅鋼板機製焊接成型,Epoxy 靜電粉體烤漆 |
| 櫃體 | 瓷白/乳白 厚8~18mm耐酸鹼PP板、鑲5mm強化玻璃 |
| 藥架 | 托架厚2.3mm鋼板、層板厚1.0mm 鍍鋅鋼板機製成型,Epoxy 靜電粉體烤漆 |
| 台面板 | 厚13mm±3%抗蝕實心化學板(可耐王水等級) |
| 五金配件 | 鋼製三節式鋼珠滑軌、ABS鉸鍊、硬質PVC 押出條型把手、4分螺桿耐重調整腳 |
| 線槽插座 | 厚1.0mm 鍍鋅鋼板機製成型,AC 110V-15A 插座、AC 220V-20A插座 |
| 照明裝置 | 依需求配置LED日光燈具組 |
| 水槽 | PP射出成型 735w*390d*315h大水槽,含落水頭及三元件 |
| 滴水架 | 內外雙層厚1.0 mm 彩鋅鋼板機製成型,PP射出成型晾乾棒39 支分長短兩種尺寸 |
| 龍頭 | 依需求配置銅製單口鵝頸化驗龍頭、單口鵝頸純水龍頭 |
| 洗眼器 | 活動式單口洗眼裝置,電鍍銅製外表Epoxy 烤漆 |
| 下櫃款式 | 單抽座位 | 單抽單門(左開or右開) | 單抽雙門 | 單門(左開or右開) | 雙門 | 水槽櫃(四門or雙門) | 三抽活動櫃 |
| 上櫃款式 | 門板壁櫃 | 門板玻璃壁櫃 | 玻璃壁櫃 | 玻璃滑門壁櫃 | 開放櫃 | 靠邊桌上型藥架 | 中央桌上型藥架 |
|
|
|
|
|
|
| |
| 水槽款式 | 黑色PP水槽 735*390*315 mm | 黑色PP水槽 500*400*300 mm | 黑色PP水槽 395*290*260 mm | 黑色PP小水槽 220*120*120 mm | 黑色PP小水槽 148*70*115 mm | SUS水槽訂製尺寸 | 白色PP水槽訂製尺寸 |
|
|
|
|
|
|
| |
| 龍頭款式 | 三口鵝頸龍頭 | 三口平行龍頭 | 雙口平行龍頭 | 單口鵝頸龍頭 | UPVC鵝頸龍頭 | PP鵝頸龍頭 | PVDF鵝頸龍頭 |
|
|
|
|
|
|
|





















