PP製傳統中央型排煙櫃
本設備為PP製傳統中央型排煙櫃,專為實驗室中央作業區配置設計,提供雙側操作介面與穩定排風功能,適合放置於開放型空間供多位人員操作。櫃體搭載壓差計,可即時監控排風壓差,保障排氣穩定與人員安全。
產品特性說明
- 中央型雙側操作設計
可置於實驗室中央位置,支援前後雙面操作,提升空間利用效率,適合多人同步作業或教學型實驗室應用。 - 高耐腐蝕PP結構
櫃體全機採用高純度聚丙烯(PP)板材製作,具備卓越的耐酸鹼與抗腐蝕性能,適用於長期接觸強腐蝕性化學氣體的環境。 - 附壓差表
側邊配置壓差表,可即時監測櫃內外壓力差,確認抽氣功能是否正常。 - 穩定排風系統與導流結構
內部設計高效導流板與後部抽氣結構,有效導引氣體快速排出,提升排煙效率並減少渦流現象。 - 滑動式透明視窗
配置上下滑動透明防蝕玻璃視窗,方便調整開口高度以配合不同實驗操作,兼顧防護與便利。 - 整合控制與儲存功能
前下方配置控制面板與多功能供應端(如電源、照明開關),底部設有PP製雙開門收納櫃,提升儲存與操作效率。
應用範圍
本PP傳統中央型排煙櫃適用於:
- 教學型與開放式實驗室
- 化學、生技與製藥實驗室
- 多人協作式樣品處理區
- 須前後雙向操作之工作流程
- 腐蝕性試劑操作空間配置
其具備高耐腐蝕性、雙向操作、壓差監控與穩定排風等優點,是兼顧空間效率與實驗安全的實用型排煙櫃選擇。
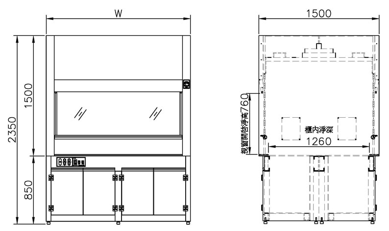
| 設備尺寸(mm) | 1500wx1500dx2350h | 1800wx1500dx2350h | 2400wx1500dx2350h |
| 作業尺寸(mm) | 1300w*1260d | 1300w*1260d | 2200w*1260d |
| 出風口 | 10" *2 | 10" *2 | 8" *4 |
| 設置高度(mm) | 2600h | ||
| 開口風速(m/s) | 0.5 | ||
| 風量需求(cmm) | 單面14/雙面28 | 單面17/雙面34 | 單面24/雙面48 |
*尺寸皆可依需求設計製作
| 外殼 | 瓷白/乳白 厚度8mm耐酸鹼PP板 |
| 內罩 | 瓷白/乳白 厚度8mm耐酸鹼PP板 |
| 台面板 | 瓷白/乳白 厚度10mm耐酸鹼PP板 |
| 視窗 | 厚6mm強化玻璃、圓弧造型PVC成型把手 ( 雙面 ) |
| 照明 | LED日光燈具組及5mm強化玻璃、燈罩,與櫃內櫃外隔離 ( 雙面 ) |
| 電器插座 | AC 110V-15A 插座2組、AC 220V-20A插座1組 ( 雙面 ) |
| 五金配件 | ABS鉸鍊、硬質PVC 押出條型把手、4分螺桿耐重調整腳 |
| 控制面板 | 設有風車馬達開關、日光燈開關、預留開關、壓差表 |
*本商品不含動力排氣裝置






