鋼製傳統中央型排煙櫃
產品特性說明
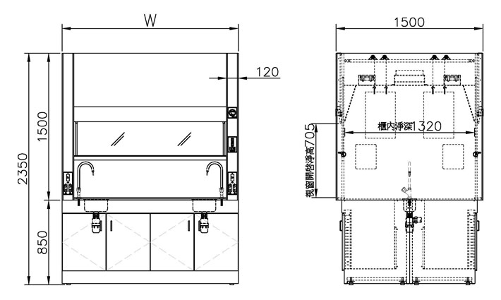
- 中置設計,雙面操作:櫃體採中央型設計,可同時支援兩側人員操作,有效提升實驗空間的使用效率與流暢度。
- 高耐用鋼製結構:櫃體主結構採用高級鋼材,經防蝕烤漆處理,具備良好的機械強度與耐久性。
- 導流設計強化排氣效能:內部配置導流板,優化氣流分布,有效將有害氣體導入排氣系統,提升整體操作安全。
- 附壓差表:側邊配置壓差表,可即時監測櫃內外壓力差,確認抽氣功能是否正常。
- 標配多元介面:可依需求搭配水考克、氣體閥門、電源插座與照明設備等,滿足實驗多樣化操作需求。
- 安全滑動視窗:透明強化玻璃窗搭配平衡滑軌系統,操作順暢,並提供操作防護。
- 下櫃整合儲存空間:搭配下方儲物櫃可放置藥品、耗材或工具,提升空間整潔與作業效率。
應用範圍
此設備適用於各類 標準化學實驗室、教學實驗室、品管實驗室 及 一般科研單位,適合進行有機合成、溶劑揮發、加熱反應、樣品前處理等實驗操作。尤其適合不涉及高腐蝕性酸洗用途的應用場景,如環保檢測、製藥開發、精密化學反應等環境。
- 雙面實驗操作空間:適用於實驗室中央區域作為雙向操作平台,提供多名使用者同時進行實驗。
- 化學實驗通風需求:適合進行產生有害氣體或揮發性物質之操作,如酸鹼處理、有機溶劑實驗等。
- 一般理化分析用途:廣泛應用於化學、生物、材料、環工等研究與教學型實驗室。
- 需監控氣流之環境:配置壓差計適用於對氣流穩定性有監控需求之操作環境。
| 設備尺寸(mm) | 1500wx1500dx2350h | 1800wx1500dx2350h | 2400wx1500dx2350h |
| 作業尺寸(mm) | 1300w*1320d | 1600w*1320d | 2200w*1320d |
| 出風口 | 10" | 10" | 8" *2 |
| 設置高度(mm) | 2600h | ||
| 開口風速(m/s) | 0.5 | ||
| 風量需求(cmm) | 單面14/雙面28 | 單面17/雙面34 | 單面23/雙面46 |
*尺寸皆可依需求設計製作
| 外殼 | 厚1.2mm鍍鋅鋼板,Epoxy靜電粉體烤漆,下櫃使用不銹鋼ㄇ型把手 |
| 內罩 | 厚6mm抗蝕實心化學板 |
| 台面板 | 厚13mm±3%抗蝕實心化學板(可耐王水等級) |
| 視窗 | 厚6mm強化玻璃搭配圓弧造型PVC成型把手 |
| 照明 | LED日光燈具組及5mm強化玻璃、燈罩,與櫃內櫃外隔離 |
| 電器插座 | AC 110V-15A 插座2組、AC 220V-20A插座1組 |
| 底座 | 厚1.2mm鍍鋅鋼板,Epoxy靜電粉體烤漆、4分螺桿耐重調整腳 |
| 控制面板 | 設有風車馬達開關、日光燈開關、預留開關 |
| 壓差表 | 即時監控氣流 |
| 選配功能 | 即時風速顯示,低風速警報,VAV 節能風速設定 |
*本商品不含動力排氣裝置











