PP-IAC-中央型排煙櫃
PP製高效能中央型排煙櫃
(High Performance PP Island-Type Fume Hood)
本設備為PP製高效能中央型排煙櫃,具備優異的抗腐蝕性與節能效率,專為實驗室中央操作區域所設計,支援雙面操作,適用於高風險化學作業。整體結構採高純度PP製成,並搭載智慧型排風監控系統與高效能排氣裝置,通過多項國際安全標準,兼顧實驗安全與空調節能效益。
產品特性說明
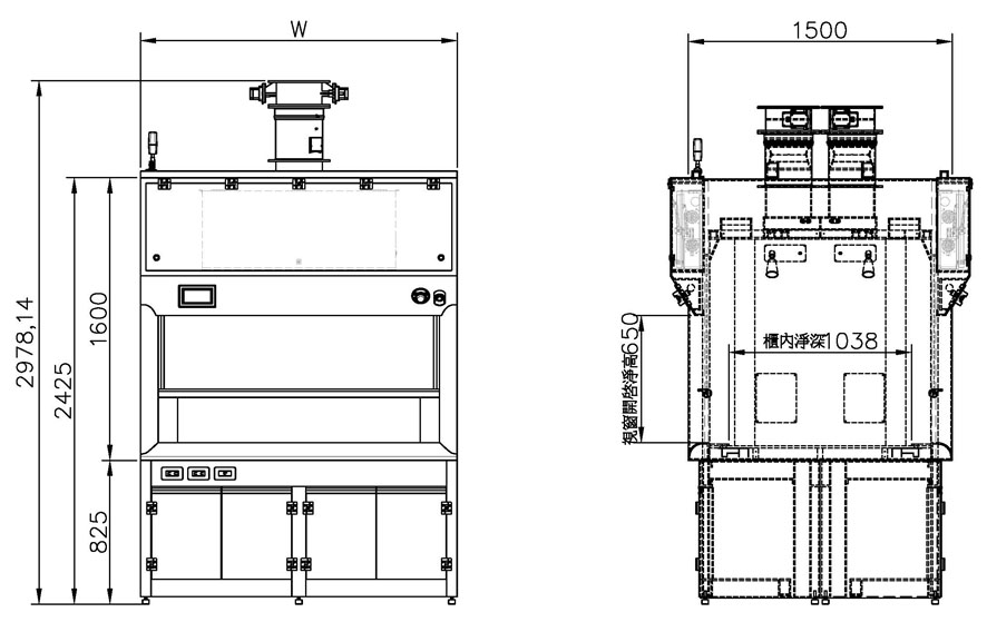
- 中央型雙面操作設計
適用於實驗室中央區域,支援前後雙面同時操作,提升空間使用率與實驗流暢度,特別適合教學、團隊研究及同步試驗作業。 - 全機高純度PP製造
櫃體以高純度聚丙烯(PP)製成,具優異耐酸鹼、耐腐蝕性,專為強酸強鹼、有機溶劑等高腐蝕性作業設計。材質穩定、清潔容易,使用壽命長。 - 通過國際測試認證
通過 EN14175-3:2019 測試,符合 NERC Class 1 安全等級,並達成 SEFA 1 高效能排氣櫃標準要求,確保設備在安全性與節能性上的雙重表現。 - 高效排風系統
採用優化氣流設計與氣簾裝置,可即時排除櫃內產生的煙霧、氣溶膠與微粒,防止有毒有害氣體逸散,保障操作區域空氣品質。 - 智慧型人機介面設計
配備觸控式控制面板,操作簡便、管理高效,提供多項智能化功能,有效提升使用便利性與設備整合能力,包括:- 即時風速顯示
- 面風速設定
- 緊急排風功能
- 低風速警報
- VAV 節能風速設定
- 人員感測偵測功能(選配)
- 自動滅火功能(選配)
- 滅火功能設定(選配)
- IOT 物聯網整合功能(選配)
- 安全滑動視窗
前方視窗可上下滑動調整開口,採用透明耐腐蝕材質製成,兼顧操作視野與氣流控制效率,提升安全性與使用靈活度。 - 內建多元供應與儲存設施
下方配置電源插座、水氣閥門(如純水、氮氣、壓縮空氣等)與PP材質儲物櫃,可安全儲存實驗器材與化學品,並具通風功能。 - 強化緊急安全保護
搭載急停按鈕與異常警報系統,若風速異常或突發狀況發生,可迅速中止操作並啟動防護功能,保障使用者人身安全。
應用範圍
本智能排煙櫃適用於各類需處理高腐蝕性或揮發性氣體的實驗場所,推薦應用於:
- 化學實驗室(無機/有機合成、腐蝕性試劑操作)
- 生技與製藥研發中心
- 半導體與電子材料製程實驗
- 大學與研究機構教學實驗室
- 微污染物處理與環境分析實驗室
其結構堅固、控制先進,能全面防護人員安全、提升操作效率,是高安全等級實驗室不可或缺的防護設備。
| 設備尺寸(mm) | 1500wx1500dx2425h | 1800wx1500dx2425h | 2400wx1500dx2425h |
| 作業尺寸(mm) | 1260w*1038d | 1560w*1038d | 2160w*1038d |
| 出風口 | 10"文式管+蝶閥 | 10"文式管+蝶閥 | 8" *2併10" *1-文式管+蝶閥 |
| 設置高度(mm) | 2600h | ||
| 開口風速(m/s) | 12 | ||
| 風量需求(cmm) | 15 (雙面) | 19 (雙面) | 28 (雙面) |
*尺寸皆可依需求設計製作
| 外殼 | 瓷白/乳白 厚度8mm耐酸鹼PP板 |
| 內罩 | 瓷白/乳白 厚度8mm耐酸鹼PP板 |
| 台面板 | 瓷白/乳白 厚度12mm耐酸鹼PP板 |
| 視窗 | 厚6mm強化玻璃(貼防爆膜)、圓弧造型PVC成型把手 |
| 照明 | LED日光燈具組及5mm強化玻璃、燈罩,與櫃內櫃外隔離 |
| 電器插座 | AC 110V-15A 插座4組、AC 220V-20A插座2組 |
| 五金配件 | ABS鉸鍊、硬質PVC 押出條型把手、4分螺桿耐重調整腳 |
| 人機面板 | 風速設定與警示、可變風量回授、節能設定、緊急排風與警報、溫度顯示、滅火功能、音樂功能…等客制化設定 |
| 備註 | 當視窗開啟高度50cm時,平均面風速在0.35m/s。參照歐規EN14175-3:2003靜態測試,其洩露率在10ppb以下。 |
*本商品不含動力排氣裝置






